RESUME
  • PROFESSIONAL WORK
  • ACADEMIC WORK
  • MIDWIFE HOUSING QUARTERS
  • [SYN]
  • TOWARDS ECOLOGICAL ECONOMY
  • ACCRA RECYCLING CENTER ARCHIVES
  • MIDWIFE HOUSING QUARTERS ARCHIVES
  • [SYN] ARCHIVE
Contact
Norwood Dennis
NORWOOD "WOOD" DENNIS
RESUME
  • PROFESSIONAL WORK
  • ACADEMIC WORK
  • MIDWIFE HOUSING QUARTERS
  • [SYN]
  • TOWARDS ECOLOGICAL ECONOMY
  • ACCRA RECYCLING CENTER ARCHIVES
  • MIDWIFE HOUSING QUARTERS ARCHIVES
  • [SYN] ARCHIVE
Contact

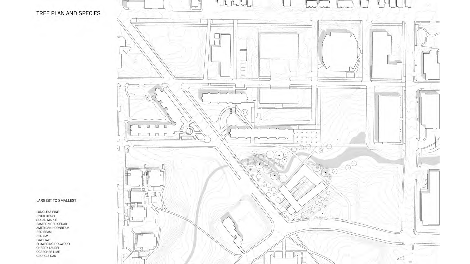
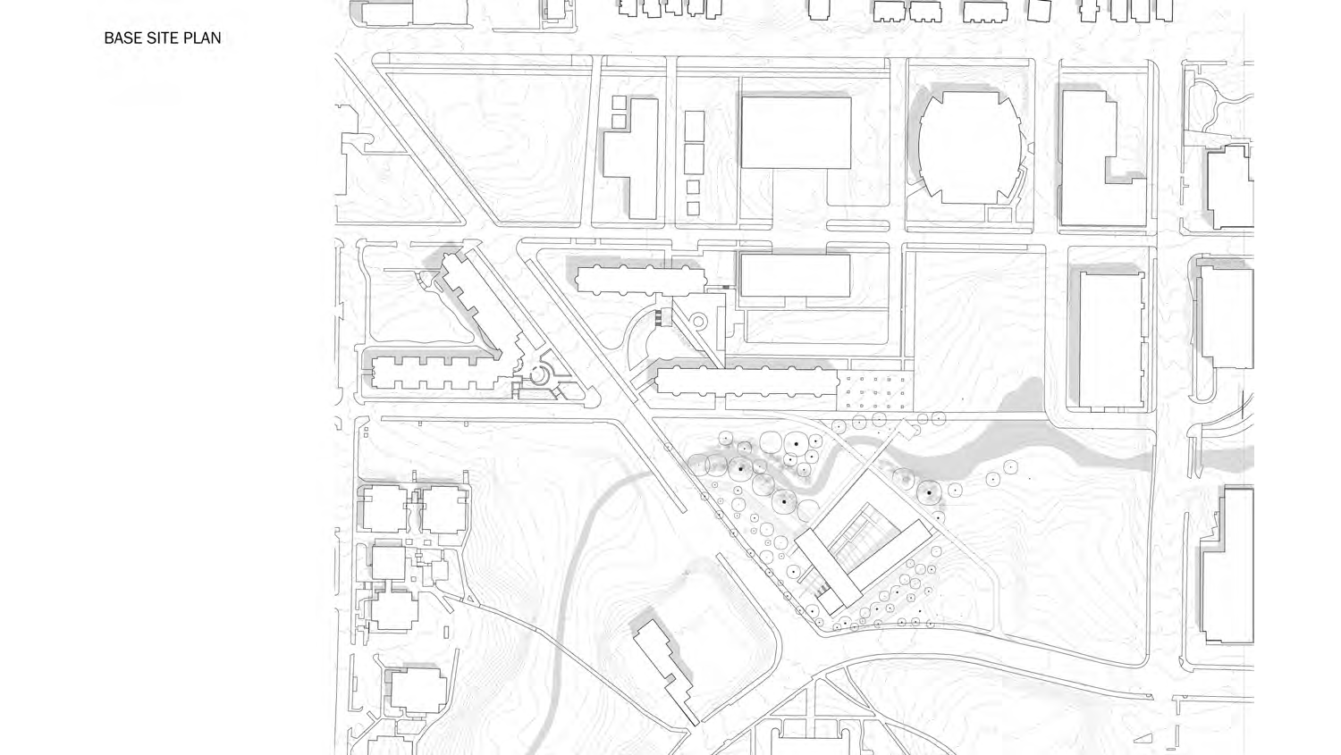
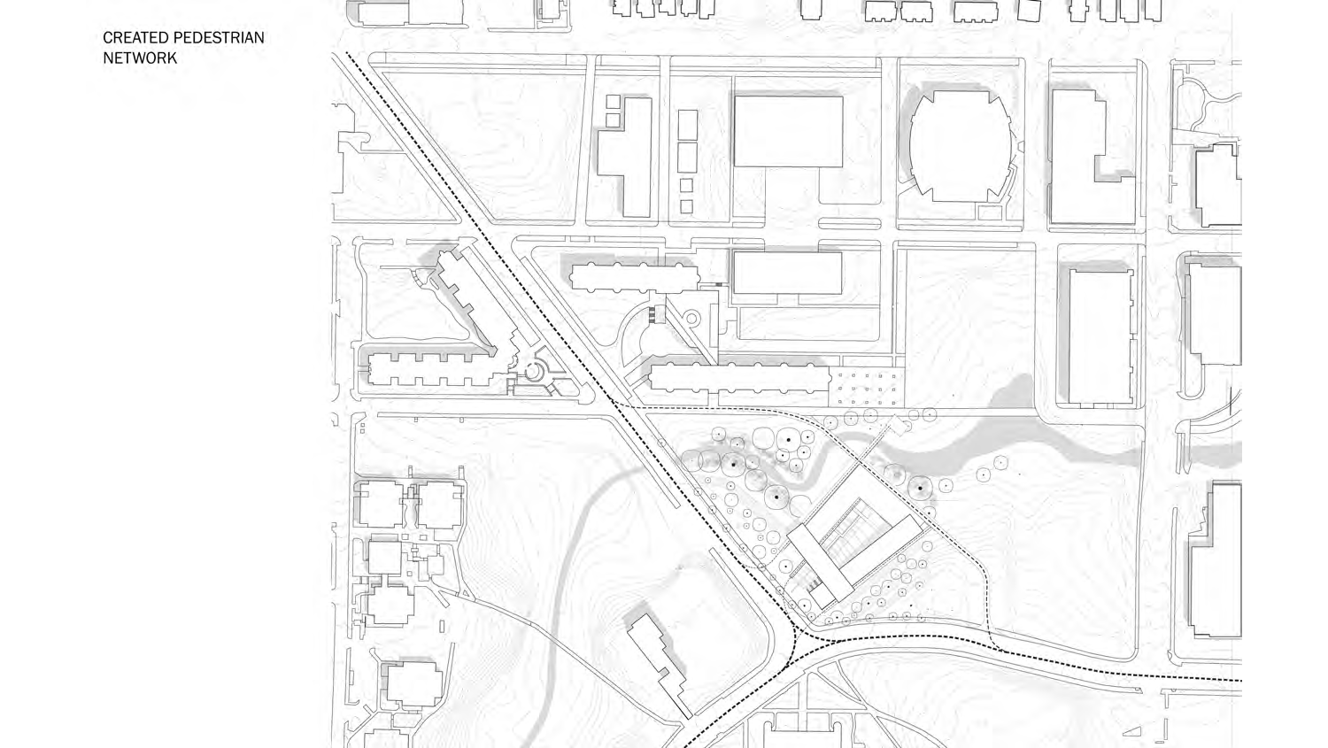
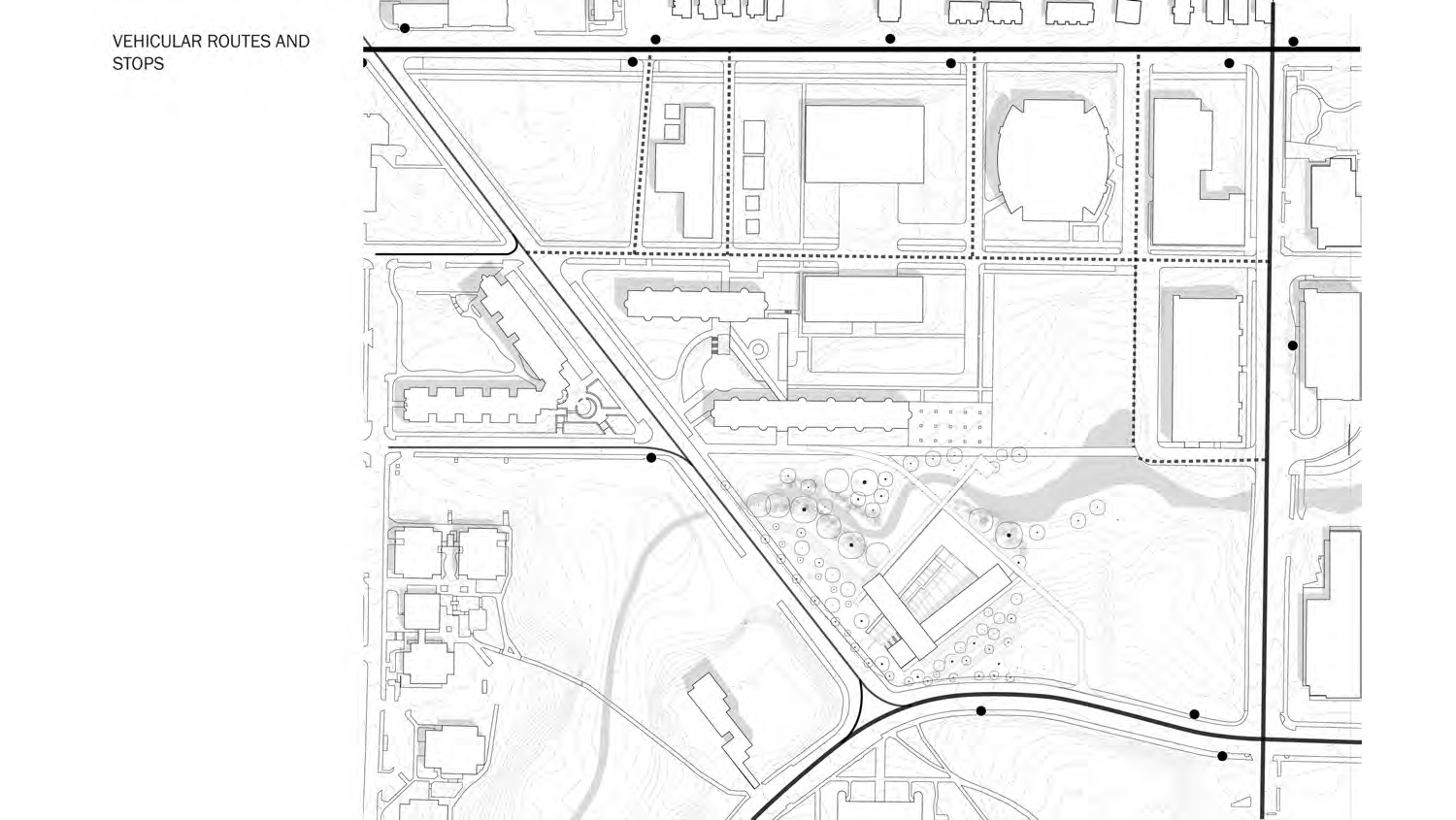
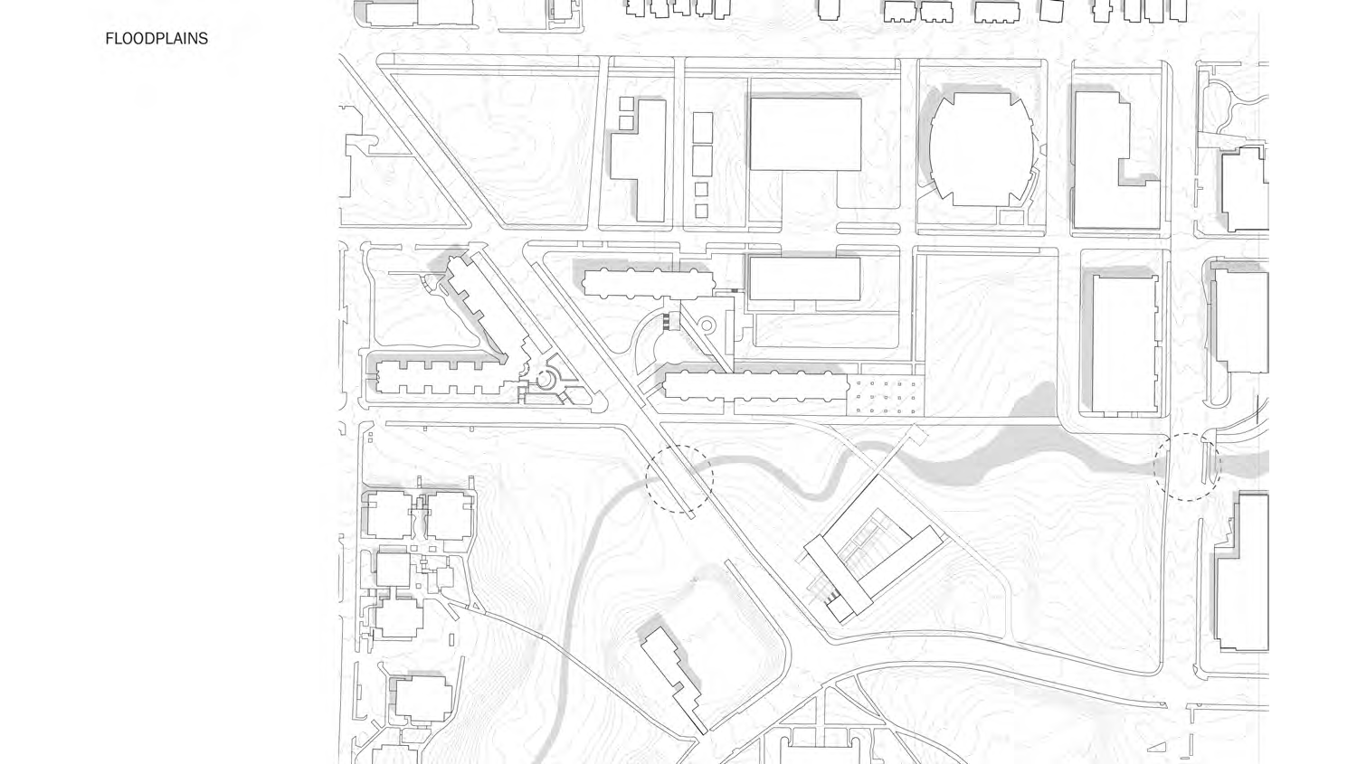
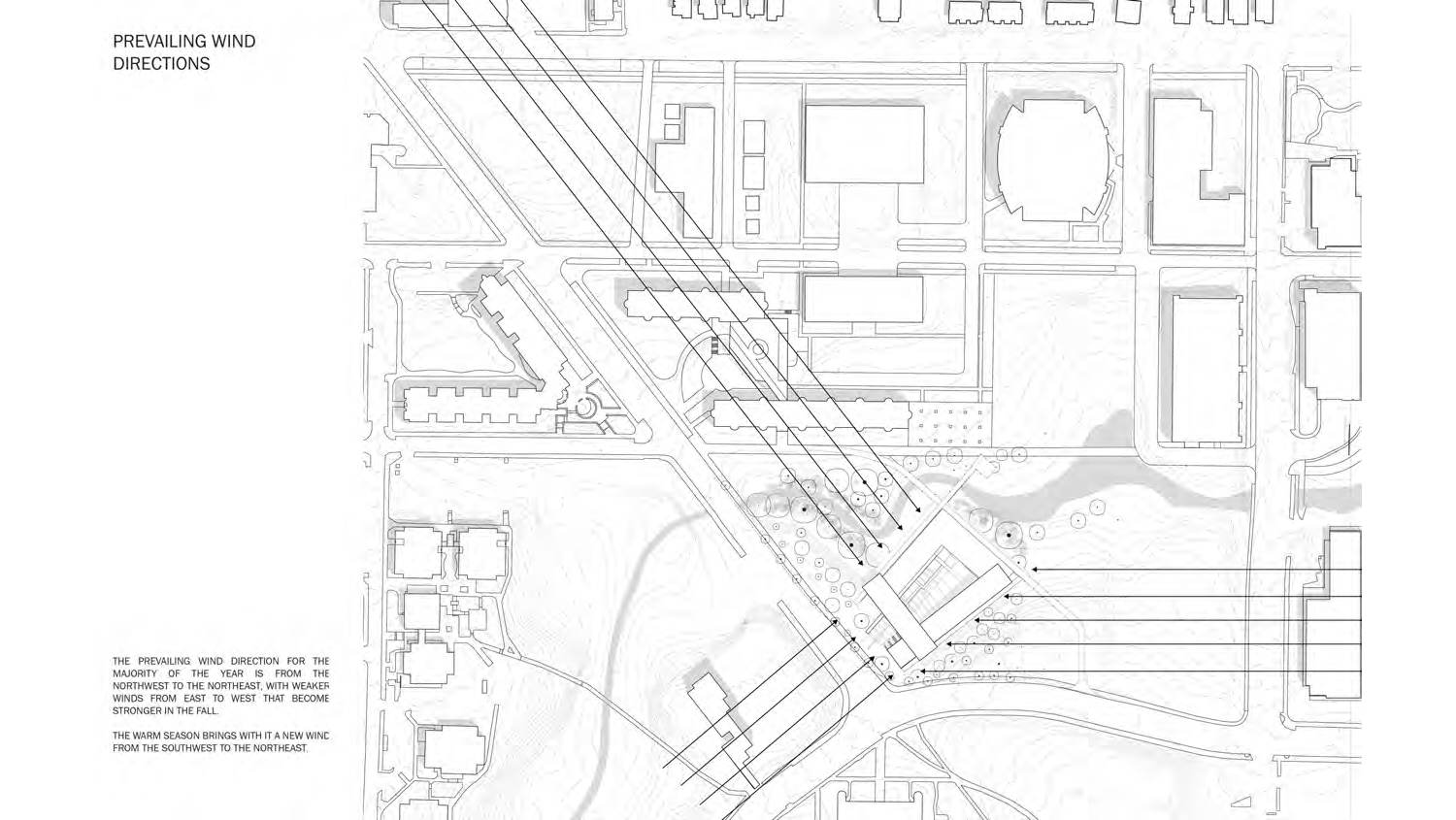
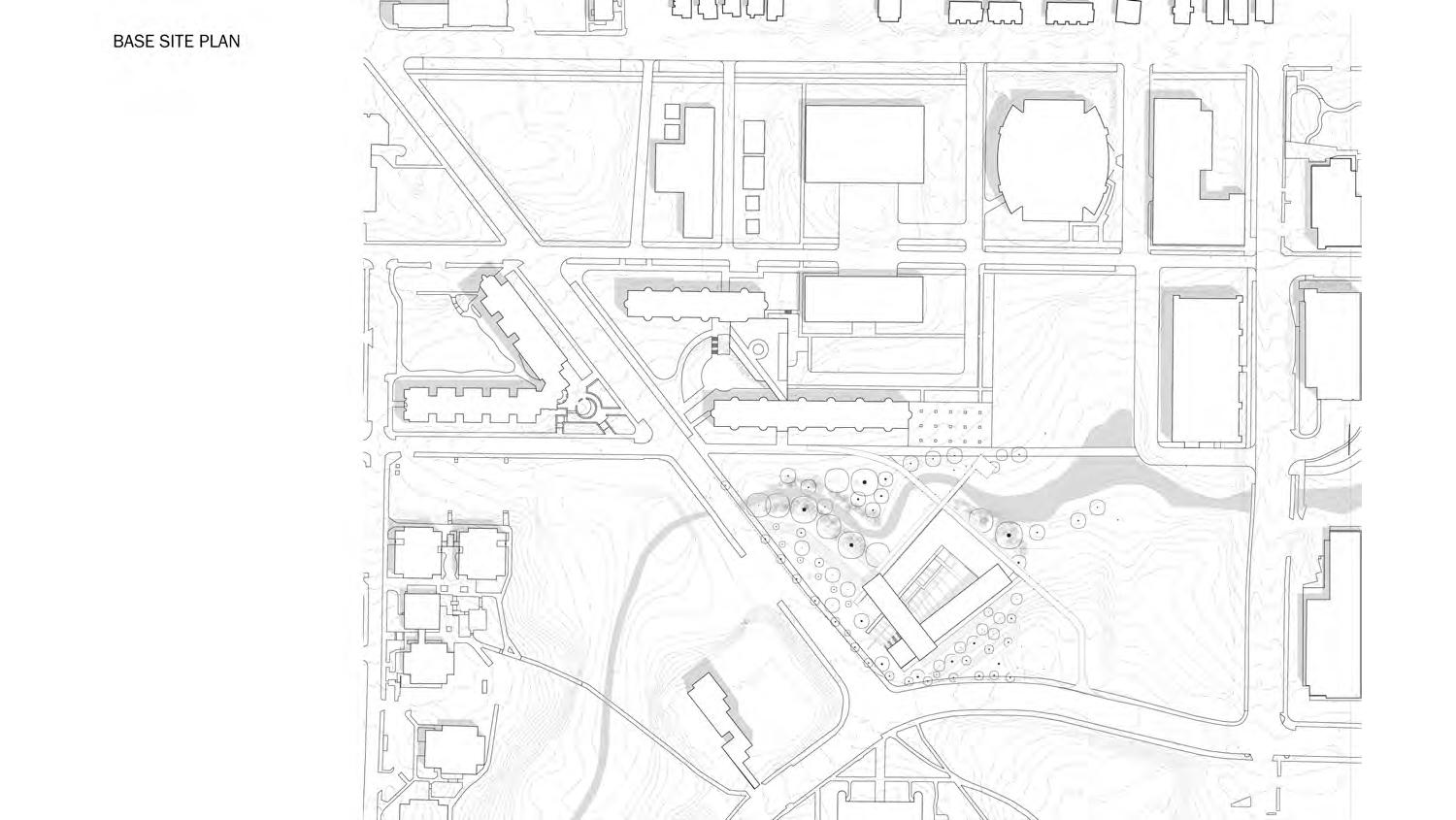
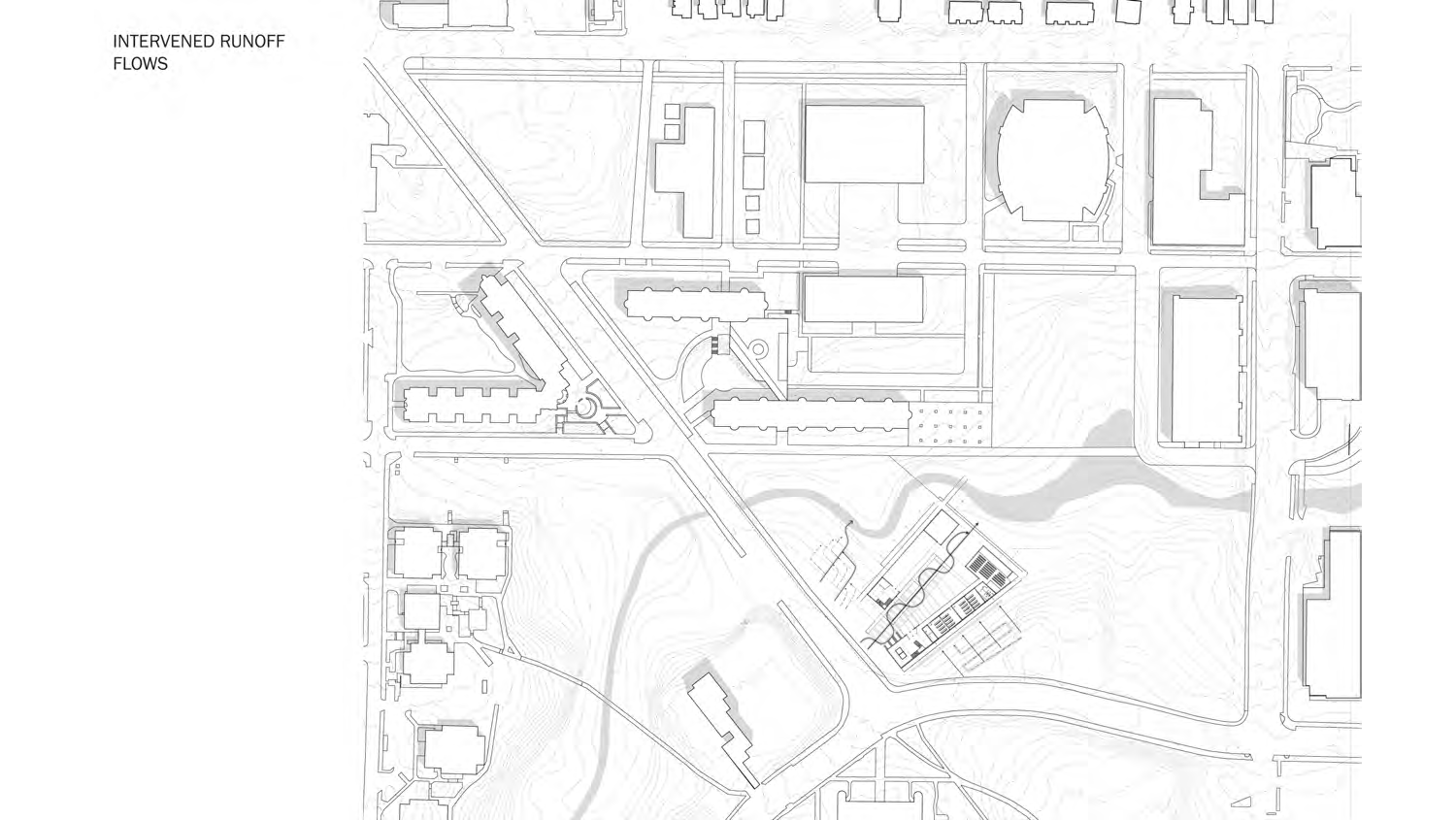
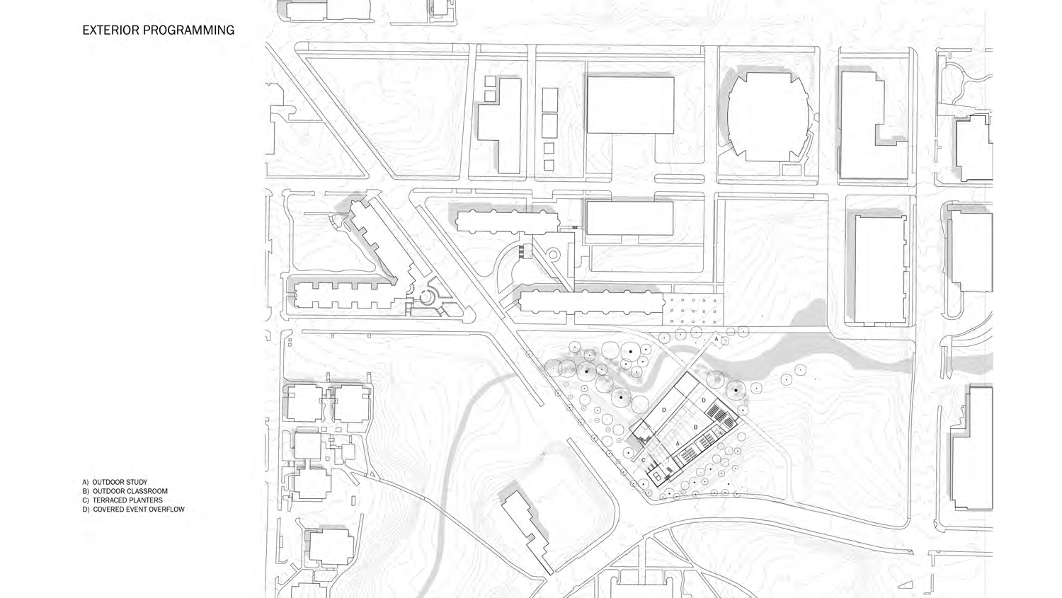
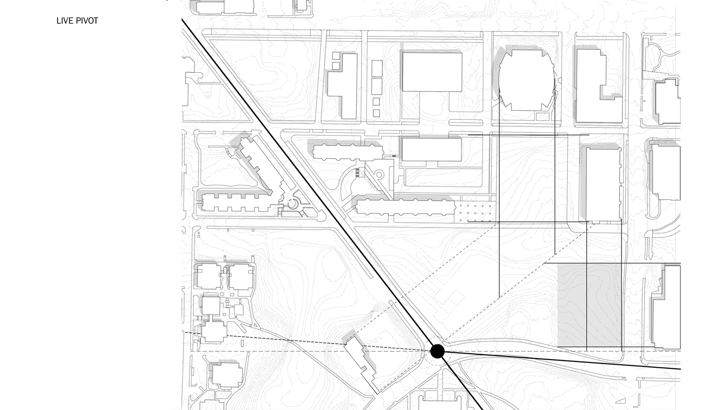
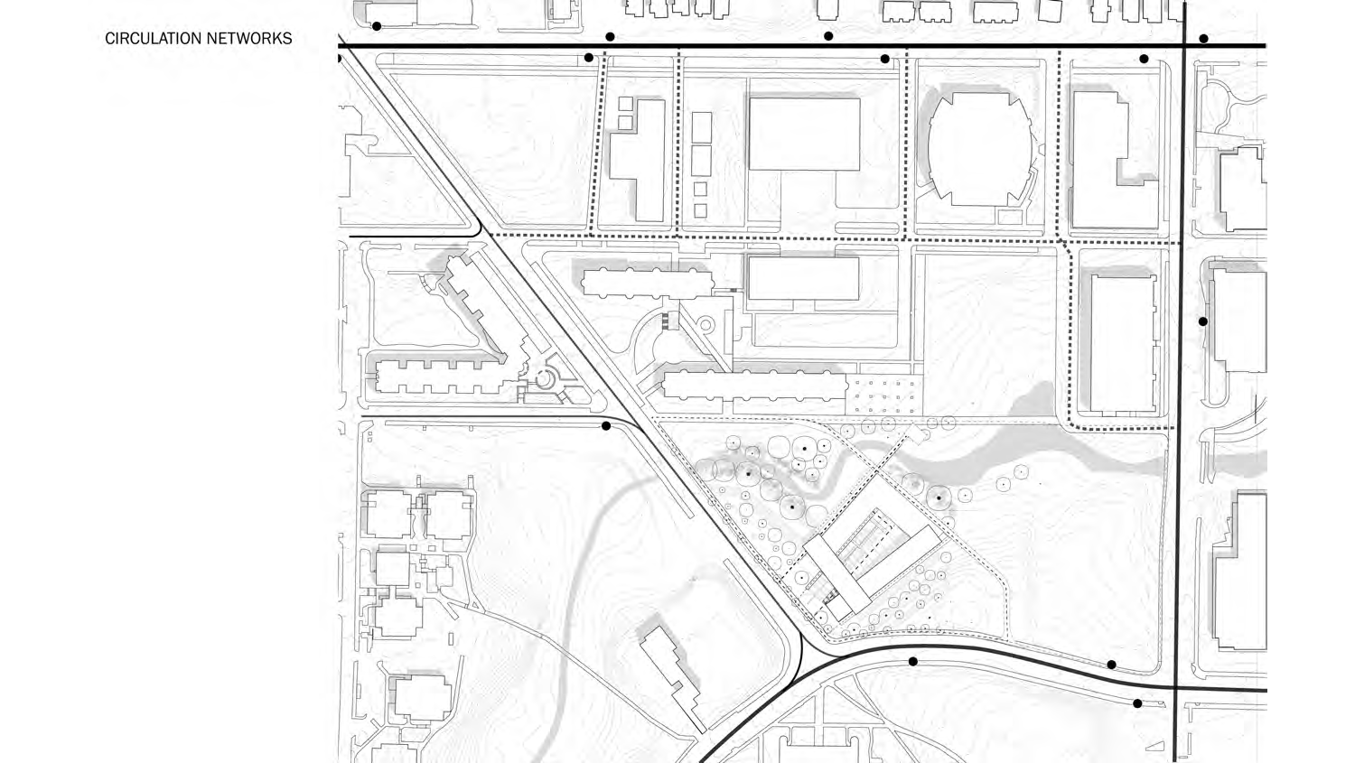
GENERATIVE DIAGRAMS

You may also like

2017
AXONOMETRIC DIAGRAMS
2016
ORTHOGRAPHIC DRAWINGS
↑Back to Top
© 2022 Norwood Dennis. All Rights Reserved.